Gerealiseerd
Jaar
2010
Esch-sur Alzette, Luxemburg
Type
Wonen
Bedrijventerrein
Opgave
Stedenbouwkundig plan
Inrichtingsplan
Thema
Cultuurhistorie
Opdrachtgever
Agora
In samenwerking met
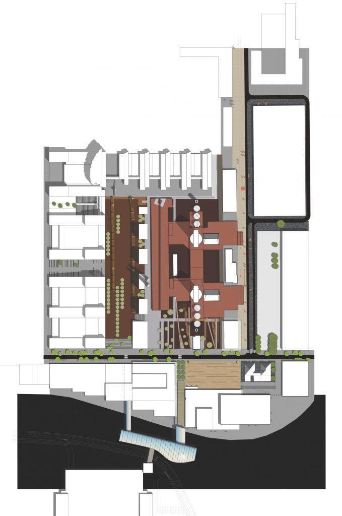
Een imposant, tempelachtig hoogovencomplex, twee enorme schoorstenen en een veelheid aan industriële relicten kenmerken het hoogoventerrein Belval Ouest in Esch, Luxemburg. Dit terrein zal getransformeerd worden in een nieuw hoogstedelijk centrum voor Luxemburg. Een universiteit, het staatsarchief, een rockhal en andere openbare inrichtingen zullen hier worden gevestigd. Rondom de hoogovens zal een nieuwe stad verrijzen voor 20.000 werknemers en 7000 bewoners. Buro Lubbers heeft in samenwerking met architectenbureau Jo Coenen & Co in 2002 een internationale competitie gewonnen om deze stad te ontwikkelen. Het uitgangspunt van het ontwikkelingsplan is dat al het aanwezige materiaal dat herinnert aan het industriële verleden in de nieuwe stad wordt verwerkt. Ook de bijzondere vegetatiestructuur wordt zo goed mogelijk in de nieuwe stedelijke structuur zichtbaar gemaakt.
Details











