Gerealiseerd
2014
Aerdenhout
Type
Wonen
Opgave
Stedenbouwkundig plan
Inrichtingsplan
Beeldkwaliteitsplan
Technisch ontwerp
Beplantingsplan
Thema
Participatie
Flexibiliteit
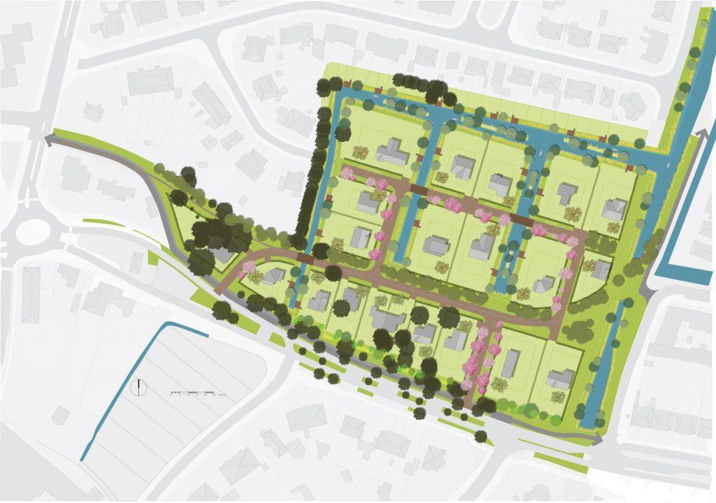
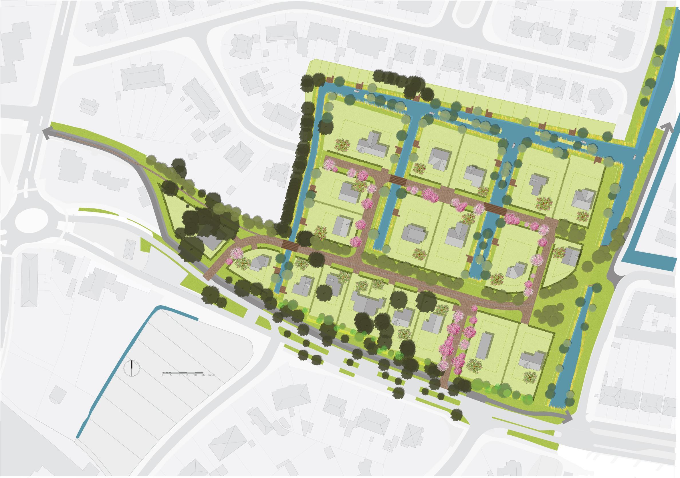
Aerdenhout krijgt een nieuwe villawijk: Haringbuys. Juist omdat Haringbuys ligt op lage natte gronden, krijgt het een andere ruimtelijke karakteristiek dan de andere villawijken in de omgeving. In aansluiting op het aanwezige slotenpatroon bestaat de ruimtelijke structuur uit rechte lijnen. Dankzij het water ontstaat een herkenbaar milieu met gebiedseigen beplanting, natuurlijke oevers en houten bruggetjes. Een oude trambaan door het gebied creëert een vanzelfsprekende zonering in een waterrijk en een meer bosrijk woonmilieu.
Omdat Haringbuys wordt ontwikkeld onder particulier opdrachtgeverschap zijn potentieel geïnteresseerde kopers evenals de omwonenden vanaf het eerste begin actief betrokken bij het ontwerp van het stedenbouwkundig en beeldkwaliteitplan. Het resultaat is dat wensen en behoeften van de potentiële kopers zoveel mogelijk in het plan zijn verwerkt. Desondanks houdt het plan rekening met eventueel tegenvallende kavelverkoop en zijn er terugvalscenario’s geformuleerd.
Details





